Showroom nábytku, Brno Kaštanová

Místo:
Brno, Kaštanová
Klient:
Centrum bydlení a designu Kaštanová
Typ:
Přestavba
Realizace:
2023 studie
Tým:
Ing. arch. Adam Boček

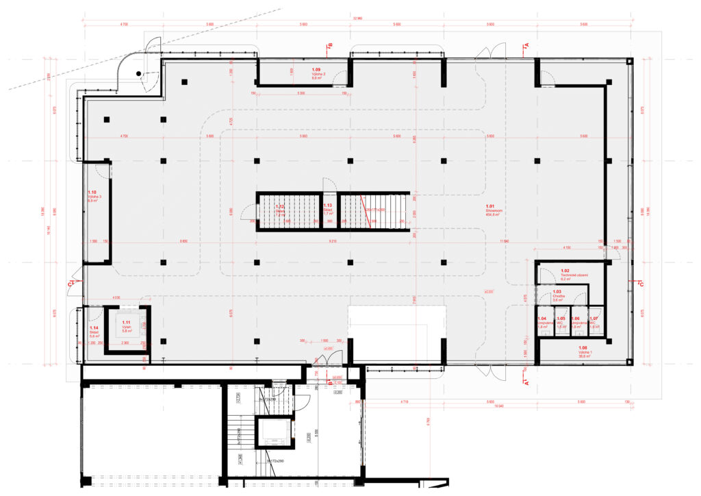
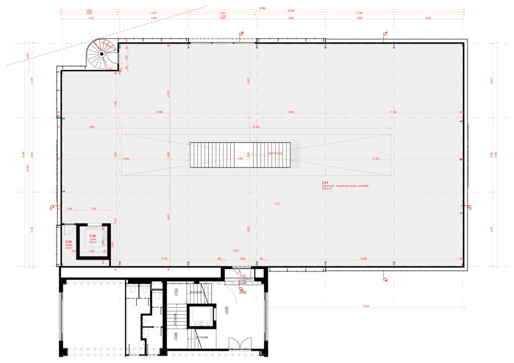
Návrh přestavby stávající skladovací haly na nový dvoupodlažní designový showroom, který je součástí areálu – Centrum bydlení a designu Kaštanová.

Nahradí dosavadní skladovací strohou halu a doplní tak komplex o další komerční prostory a showroom.

Další varianty návrhu, hledání nejlepšího řešení.

Přejít nahoru