Interiér a změna dispozice bytu,
Brno 2024

Místo:
Brno
Klient:
Soukromá osoba
Typ:
Interiér
Realizace:
2024 studie
Tým:
Ing. arch. Vanessa Rontová
 
Ing. arch. Adam Boček

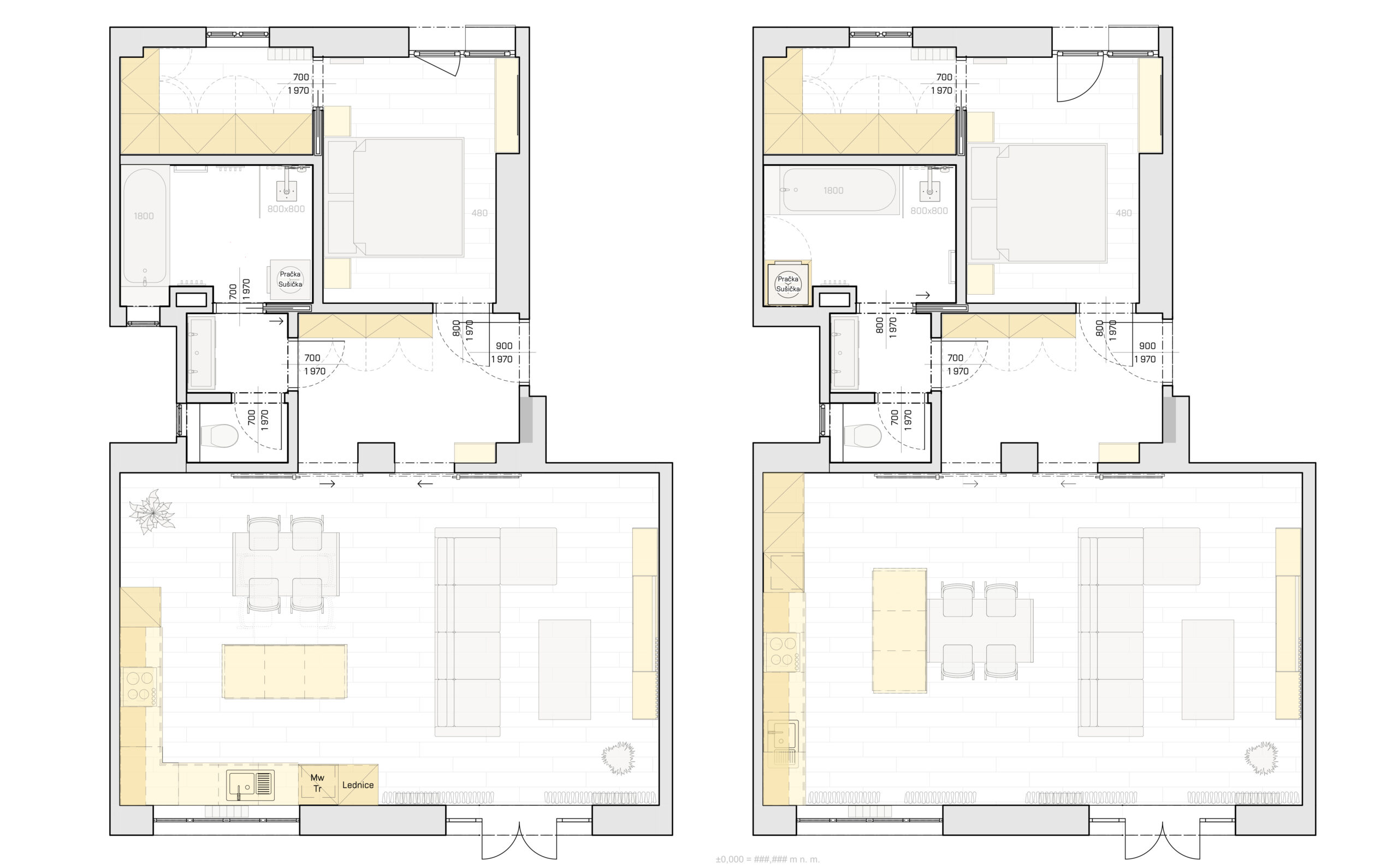
Návrh úplné změny dispozice bytu, zpracování několika variant pro zjištění nejideálnější verze a koncepční návrh interiéru.

Zadáním byl vznik velkého obývacího pokoje s kuchyní a vznik jedné ložnice se samostatnou šatnou. Hlavní důvod rekonstrukce bylo zajištění velké koupelny se samostatným WC.

Přejít nahoru